Australia

# Sold Contact Agent

3/108 Alma Road, Dakabin, Qld 4503

# Location

Description

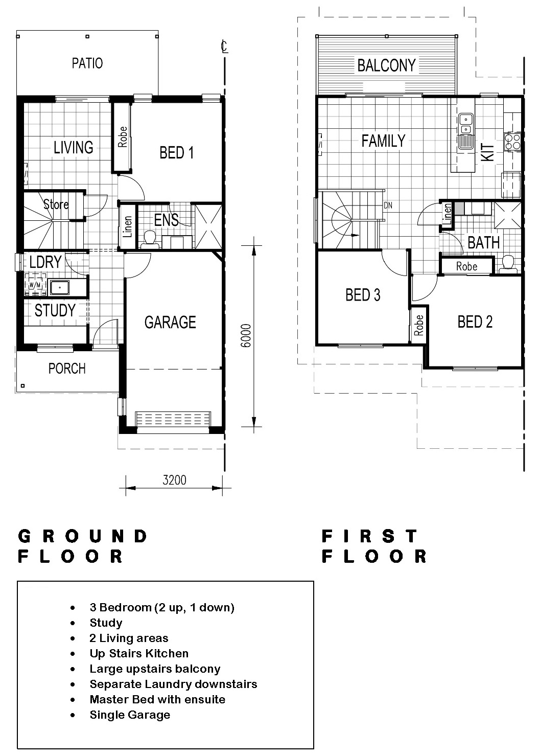
3 Bedroom Townhouse – Ideal for Investment! Built in 2017 this three-bedroom two-level townhouse, is within a quiet, secure, and well-maintained complex complete with onsite management, swimming pool, gym-room, ample parking and low body corporate fees.

Conveniently located with all amenities nearby. Public transport is on the doorstep (bus route on Alma Road), local shopping complex is nearby with Woolworths, bottle-shop and chemist and schools/childcare facilities are also close at hand.

It's a short 8min drive to Westfield North Lakes and all other North Lakes amenities; Costco, Bunnings and commercial precincts are easily accessible via Plantation Road with Dakabin Train Station just a few minutes’ drive away.

This investment property offers solid returns and almost zero vacancy rate, and Dakabin is an up-and-coming area with capital growth just beginning to flow through the area and townhouse market into 2024 as the population grows.

Rates - $500/quarter (approx) Body Corp Levies - $965/quarter (approx)

Photos used are indicative, an onsite or remote inspection is required for interested buyers.

EMAIL us for more information today.

View More #

Floor Plans

Location

  • Contact the agency

    To request an inspection

  • # Call # Email

Mathew Anderson

Agent Name

# Report Listing

Looking for a property?

  • Top listings
  • Investment
  • Development
  • Personal home
  • Price reports
  • Suburb reports

Do you own a property?

  • Place a free listing
  • Services for private advertisers
  • Guide to selling your home
  • Insurance
  • Improve the photos of your listing
  • Value your property for free

Are you a real estate proffesional?

  • Publish your agencies properties
  • Already a client? Log into your account
  • Advertising on Australian Real Estate
  • Australian Real Estate data technology for property insights
  • Real Estate courses